Mehrfamilienhaus Hallwilerweg

Baugeschichte bewahren, Charakter erhalten:
Das Schöne im scheinbar Unscheinbaren wiederentdecken.

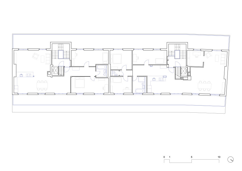
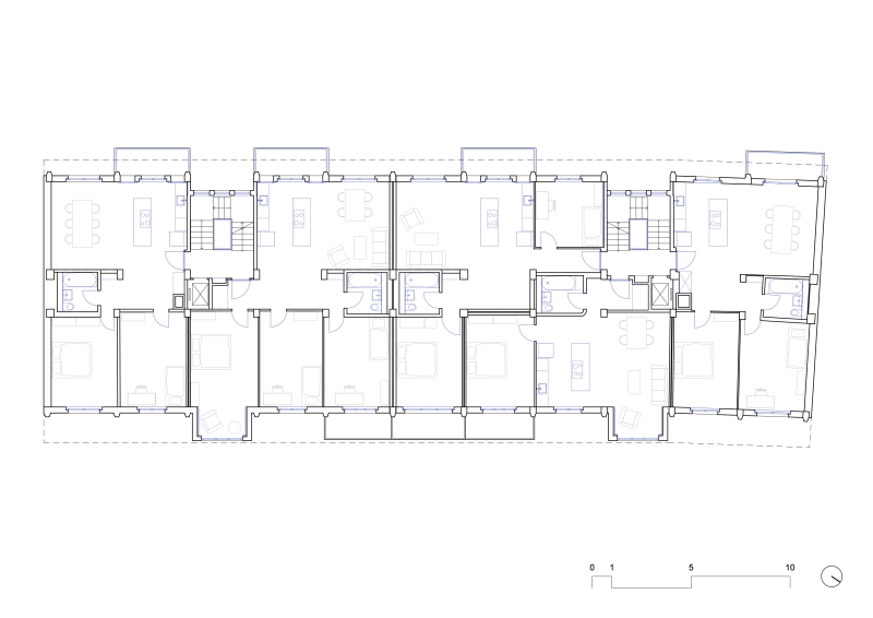
Erneuerte Fenster, Küchen, Bäder und Treppenhäuser schaffen zeitgemässe Funktionalität, während Strangsanierungen und Solarkollektoren die Energieeffizienz verbessern.

Durch die enge Abstimmung mit der Denkmalpflege wird der historische Bestand sensibel erhalten und gleichzeitig an heutige Wohnbedürfnisse angepasst.