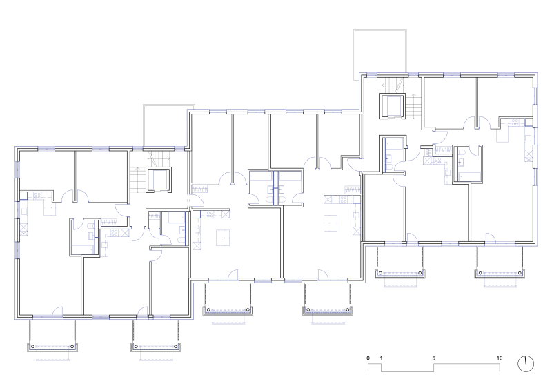
Mehrfamilienhaus Rütistrasse

Altes Haus, neue Effizienz:
Energetische Gesamtsanierung und nachhaltige Aufstockung

Durch energetische und technische Gesamtsanierung sowie Aufstockung wird das Mehrfamilienhaus nachhaltig fit für die nächsten Jahrzehnte gemacht.