Büroausbau SBB

Bauen im Bestand:
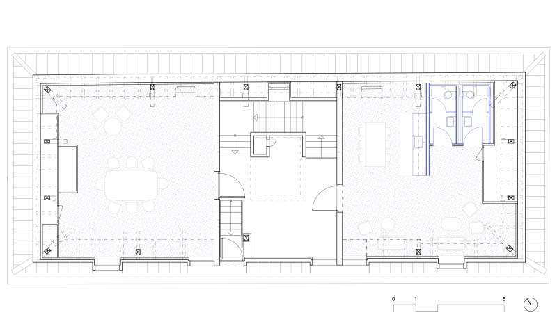
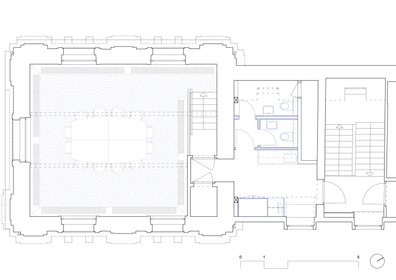
Eine neue Innenhaut für die historische Bausubstanz

Historische Struktur und zeitgemässe Eingriffe treten in ein ausgewogenes Verhältnis, ohne sich gegenseitig zu überlagern.

Denkmalschutz und Nutzungserweiterung werden als zusammenhängende Aufgabe verstanden mit Respekt vor dem Bestehenden und Offenheit für das Neue.

Im Ergebnis steht ein Gefüge aus Alt und Neu, das funktionale Anforderungen erfüllt und den historischen Ausdruck bewahrt.